Bought with Kieffer Real Estate
For more information regarding the value of a property, please contact us for a free consultation.
52 Sweden ST Caribou, ME 04736
SOLD DATE : 10/01/2025Want to know what your home might be worth? Contact us for a FREE valuation!

Our team is ready to help you sell your home for the highest possible price ASAP
Key Details
Sold Price $214,000
Property Type Commercial Sale
Sub Type General Commercial
Listing Status Sold
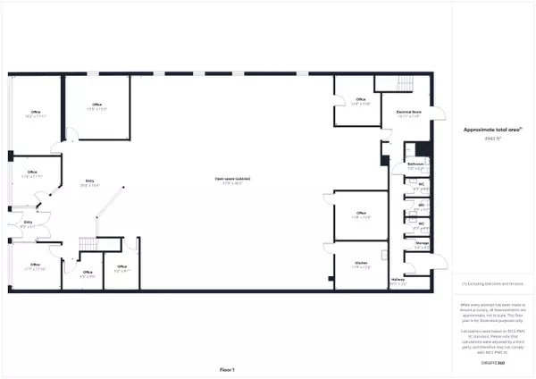
Square Footage 5,665 sqft
MLS Listing ID 1623147
Sold Date 10/01/25
HOA Y/N No
Annual Tax Amount $4,335
Tax Year 2024
Lot Size 5,662 Sqft
Acres 0.13
Property Sub-Type General Commercial
Source Maine Listings
Land Area 5665
Property Description
Prime Commercial Property for Sale in Downtown Caribou.
Discover this versatile commercial space offering approximately 5,665 sqft of finished floor area, perfectly suited for a variety of business uses. A spacious reception area, large open area (currently set up with cubicles) and 8 private office areas are featured on the main floor, ideal for management, team trainings, or focused work.
Additional highlights include a large kitchenette and break room, multiple bathroom facilities—three half baths and a 3/4 bath on the main floor and an unfinished basement providing potential for further customization. The building is equipped with updated lighting and fresh paint, creating a bright and welcoming environment.
Infrastructure is robust, with a newer generator, comprehensive heating and cooling throughout, a server room, multiple breaker boxes, a sprinkler system, and connections to public water and sewer. The property benefits from an excellent downtown location in Caribou, offering high visibility and ease of access.
Don't miss this opportunity to own a well-maintained, adaptable commercial property in a bustling area. Contact us today to schedule a viewing or for more information!
Location
State ME
County Aroostook
Zoning Commercial
Rooms
Basement Full, Unfinished
Interior
Interior Features Storage
Heating Zoned, Hot Water, Baseboard
Cooling Central Air
Flooring Carpet
Equipment Internet Access Available
Exterior
Parking Features Off Site, Paved
Utilities Available 1
View Y/N No
Roof Type Flat,Tar/Gravel
Accessibility Level Entry
Building
Lot Description Near Airport, Downtown, Business District, Near Shopping, Retail Strip, Shopping Mall
Building Description Brick,Masonry, Other Equipment,Security System,Generator,Sprinkler - Wet
Story 1
Foundation Concrete Perimeter
Sewer Public Sewer
Water Public
Structure Type Brick,Masonry
Others
Restrictions Unknown
Energy Description Oil
Read Less

GET MORE INFORMATION




